
Spiegelkabinett
© Bild: Hannes Heinzer

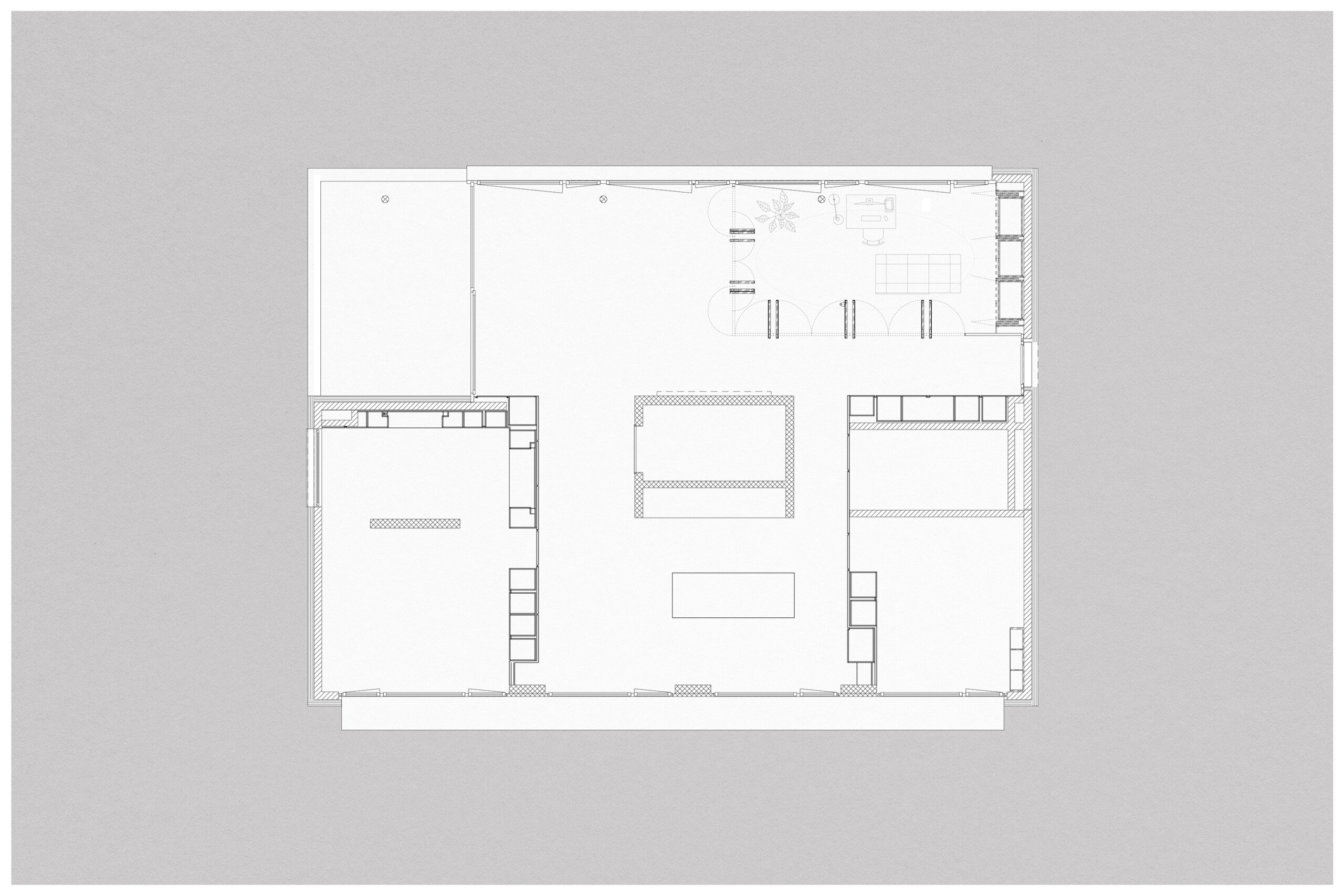
Grundriss geschlossen
Das neue Atelier im geschlossenen Zustand

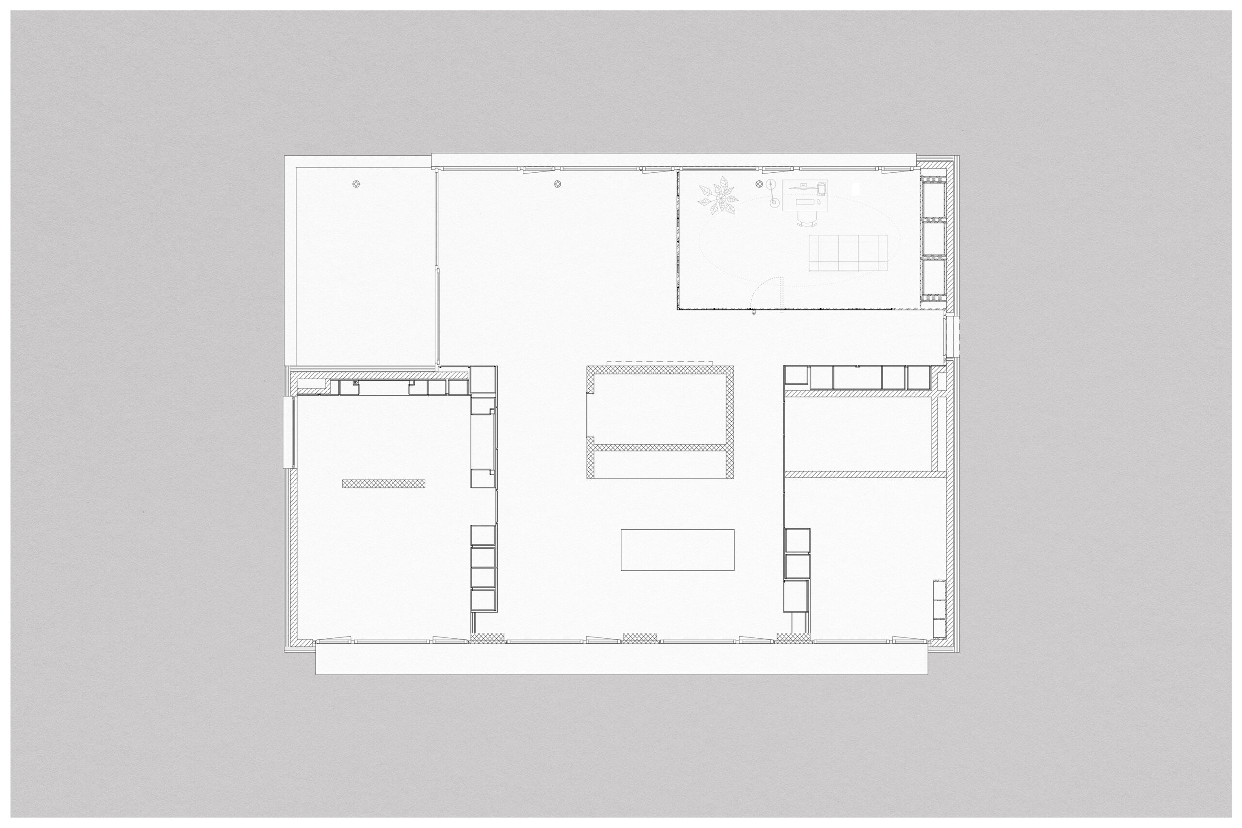
Grundriss geöffnet
Das neue Atelier im durchlässigen Zustand

geöffneter Zustand
© Bild: Hannes Heinzer

geschlossener Zustand
© Bild: Hannes Heinzer

Schrankfront
Auch die Schrankfront kann komplett geöffnet und geschlossen werden. © Bild: Hannes Heinzer

Scuola Grande Tedesca, Venedig
Korrektur der Raumgeometrie an der Decke

Geometrie der Ellipse im Raum
Korrektur der Raumgeometrie an der Decke

Gestaltung durch Subtraktion
Die bestehende, verputzte Betondecke wird partiell freigelegt und geschliffen

© Bild: Hannes Heinzer

© Bild: Hannes Heinzer

Grundriss geöffnet 
© Bild: Hannes Heinzer

© Bild: Hannes Heinzer

© Bild: Hannes Heinzer

© Bild: Hannes Heinzer


Grundriss geschlossen 
Griff und Spiegelungen
© Bild: Hannes Heinzer

Der halbe Griff
Eine Illusion durch Spiegelung wird dann besonders überzeugend, wenn Original und Spiegelung zusammen eine bekannte Form zu ergeben scheinen.

Der halbe Griff, gespiegelt
© Bild: LIA




















