
Bestand und Erweiterung 
Bestand 

Hof und Neubau 
Eingangsbereich 
Kindergarten 
saniertes und erweitertes Schulhaus 
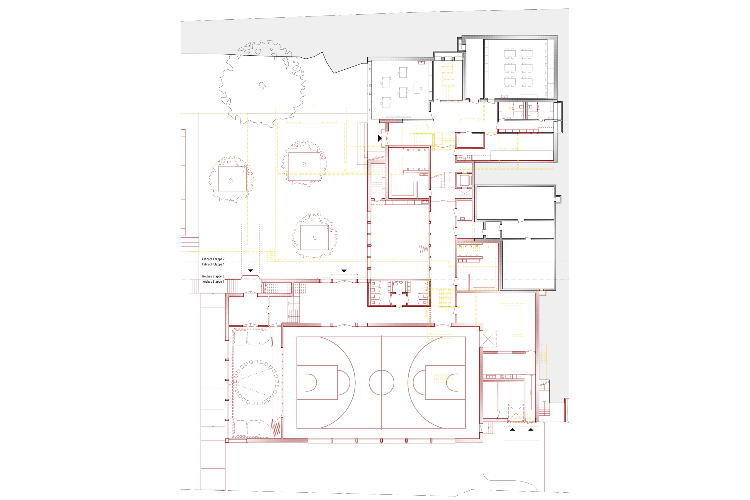
Grundriss Ebene 0 
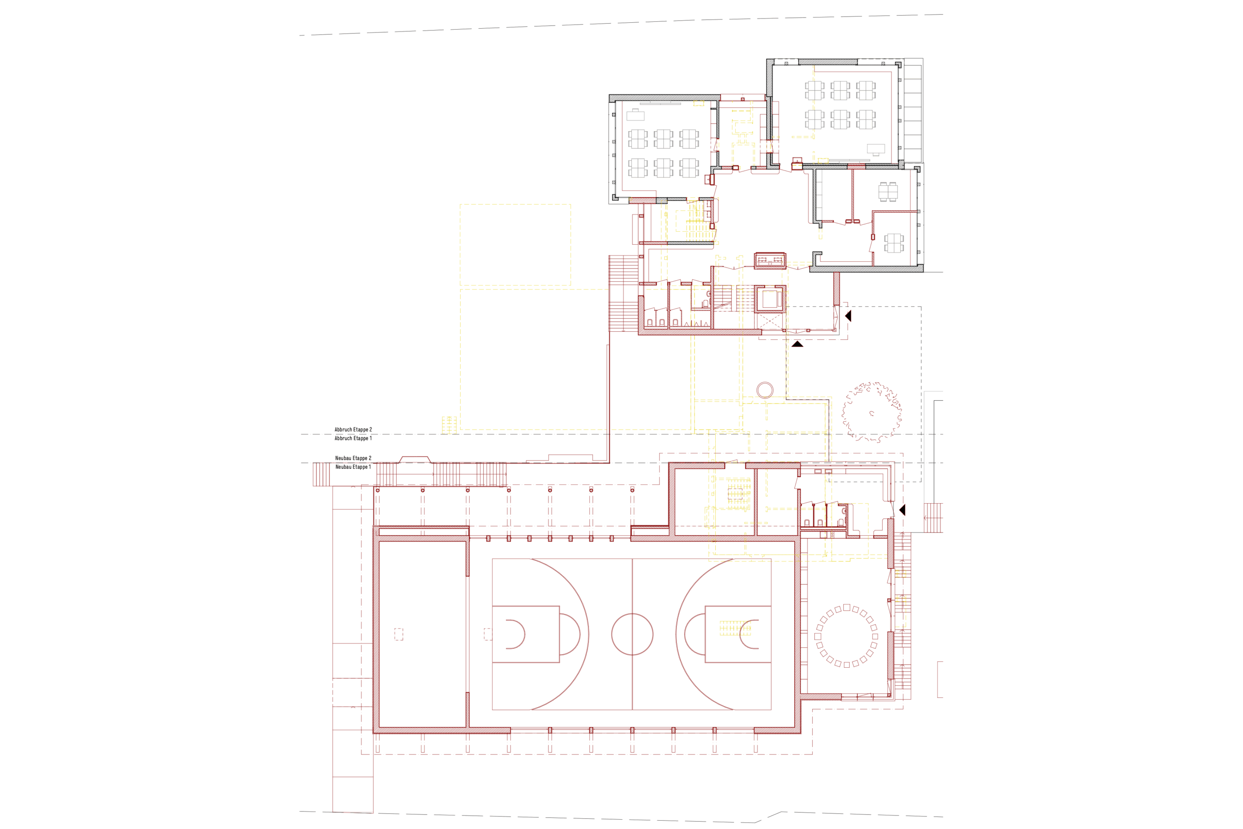
Grundriss Ebene 1 
Grundriss Ebene 2
Wir haben uns bemüht, die Eingriffe so klein wie möglich zu halten, die Erweiterung knapp und integrativ und die ganze Anlage auf eine möglichst zurückhaltende, fast leise Art in ein zukunftsfähiges Ensemble umzuwandeln. Das bestehende Schulhaus, obschon zum Abbruch freigegeben, lassen wir stehen – und versuchen, mit einigen kleinen Eingriffen und einer kleinen Erweiterung die ursprünglichen Qualitäten des Baus wiederzufinden und in zeitgemässe Schulräume zu übersetzen. Selbstverständlich lassen wir auch den bestehenden Kindergarten stehen. Er funktioniert gut und hat das Ende seiner Lebensdauer längst nicht erreicht. Statt einem Abbruch versuchen wir, seine etwas unglückliche, städtebauliche Setzung in das neue Ensemble einzubinden. Die Erweiterung der Anlage mit einer Mehrzweckhalle, einem Kindergarten und Räumen für die Lehrpersonen erfolgt in einer Holzbauweise, die ihren Ausdruck zwischen der Sprache des Holzbaus, der Geschichte des Ortes und dem erhaltenen Schulgebäude findet.
Die Qualitäten des Projekts entstehen aber nicht nur durch die neuen Bauten, sondern vor allem auch durch die Räume, die zwischen den Bauten entstehen. Eine vielfältige Platz- und Raumabfolge entsteht, die auf verschiedenen Ebenen unterschiedliche Funktionen für Schule und Kindergarten, aber auch für das Vereins- und Dorfleben abzudecken vermag. Durch das Zusammenrücken der Bauten werden zudem die Landreserven geschont und der Versiegelungsgrad reduziert.
Ökologie, Ökonomie und Nutzung gehen so in der architektonischen Idee des Weiterbauens auf.



















