
Eingangsfassade 
Schwarzplan Zeiningen 
Situation 

Schnitt Foyer 
Foyer 
Ansicht Ost 
Foyer 
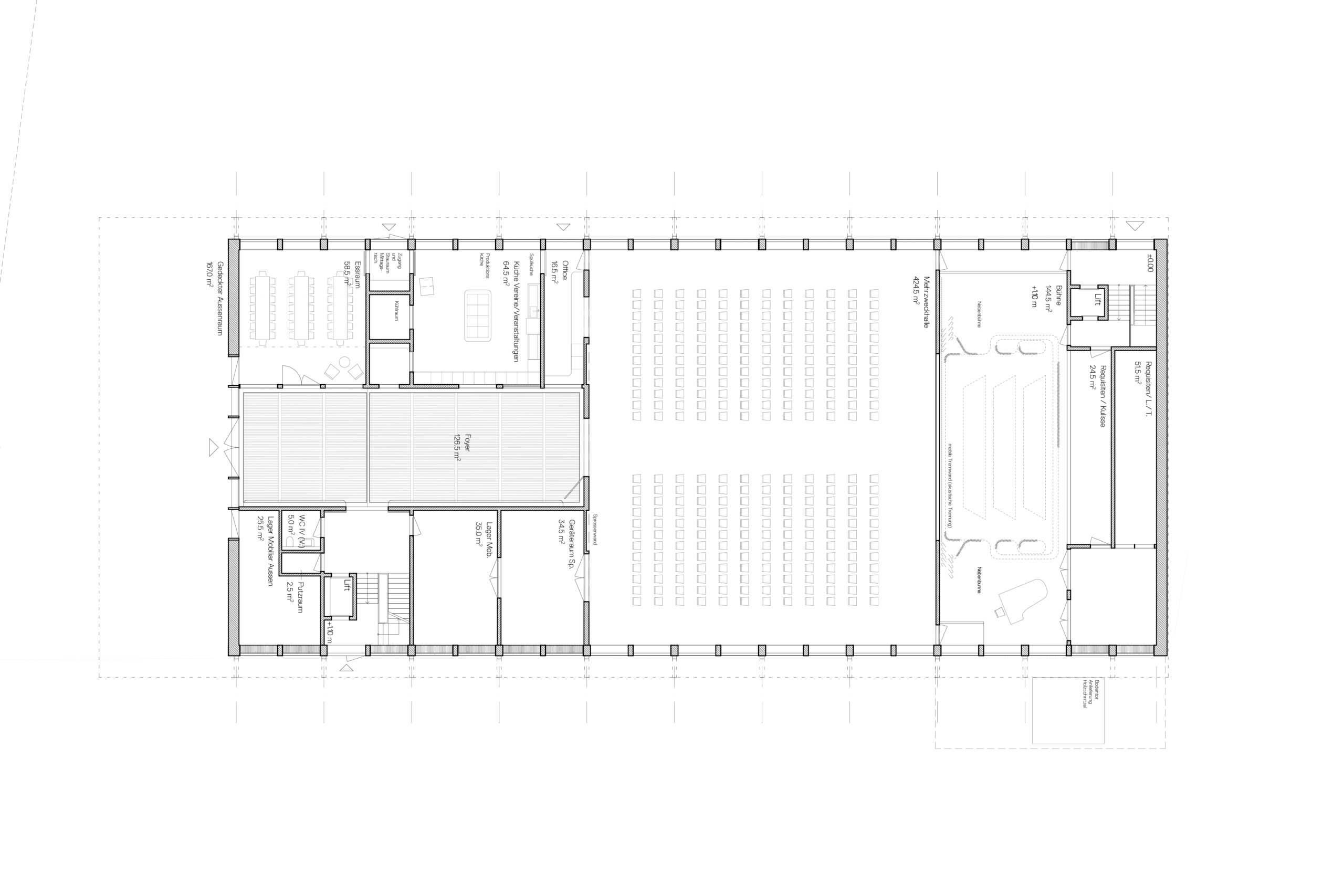
Grundriss untere Ebene 
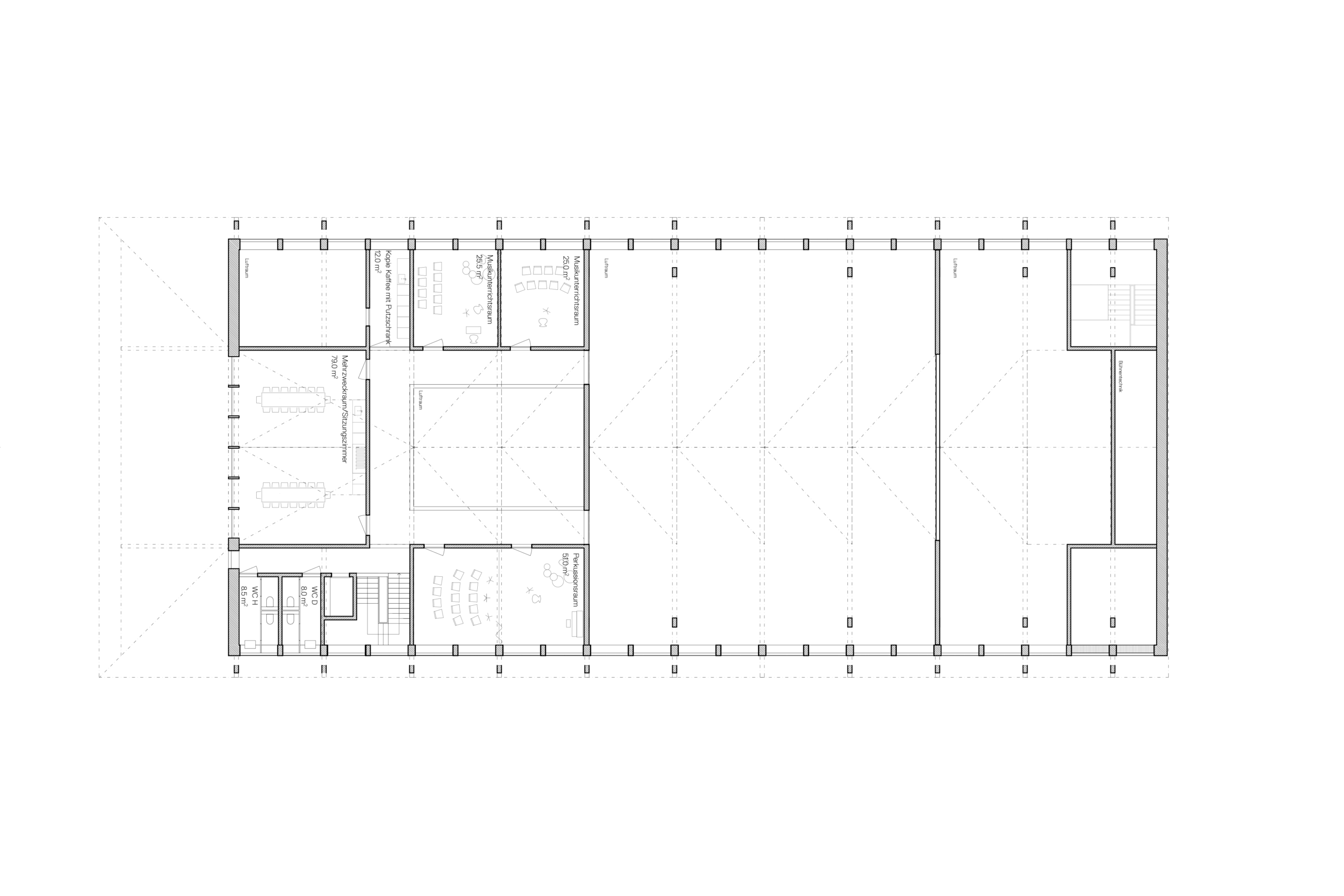
Grundriss obere Ebene 
Mehrzwecksaal 
Axonometrie 

Schnitt Saal 
Südfassade 
Längsschnitt 
Konstruktion
Wettbewerbsprojekt für eine neue Mehrzweck- und Kulturhalle mit Musikschule und Vereinsräumen in Holzbauweise
Der Ort Zeiningen wächst, in den letzten 20 Jahren immer schneller. In der Bebauungsstruktur und schon in älteren Katasterplänen fällt eine Besonderheit der Bebauungsstruktur auf. Schon früh sind zwei Siedlungsteile erkennbar. Einerseits das Haufendorf mit Kirche und Rathaus, andererseits ein Strassendorf entlang der Reb- und Haldengasse In diesem Teil wird das neue Mehrzweckgebäude stehen. Mit dem Neubau wird der Ort um ein öffentliches Gebäude ergänzt. Der Neubau soll dazu beitragen, den Ort in seiner baulichen Identität zu stärken und ein neues Erkennungszeichen für Passierende, für Alteingesessene und neu Zugezogene sein.
Das gewachsene Dorf ist geprägt durch traufständige Satteldachbauten, deren Dächer an den Traufseiten weit auskragen. Diese ortstypischen Dächer zeichnen sich oft durch einen eleganten Wechsel der Dachneigung etwa in Dachmitte aus. Eine Dachform, die den stehenden Dachstuhl abbildet und in vielen Teilen der Schweiz historisch so nicht zu finden ist. Die massiven oder massiv ausgemauerten Giebelwände sind wenig befenstert, die Traufseiten hingegen haben grosse Öffnungen, die durch Vordächer vor der Witterung geschützt werden. Dadurch entstehen entlang der Strasse halböffentliche Vorbereiche mit hoher Aufenthaltsqualität, die auch durch einen besonderen Bodenbelag von Trottoir und Strasse abgegrenzt werden.
Das Strassendorf wird durch das neue Mehrzweckgebäude komplettiert - ein ortstypischer Strassenraum entsteht. Mit seinem Belag, den Veloplätzen, dem Brunnen und dem präzis gesetzten Baum entsteht aber kein typischer “Autoraum”, sondern ein dörflicher Verkehrsraum. Abgegrenzt davon entsteht zur Schulanlage Brugglismatt ein grosszügiger, ruhiger und grüner Aktivraum, der eine hohe Aufenthaltsqualität verspricht. Im südöstlichen Bereich des Grundstücks schliesslich ist der Haupteingang des Baus an einem öffentlichen Raum angegliedert - er vermittelt unter dem einprägsamen Vordach zwischen Strassen- und Grünraum und ist gut auffindbar. Seine Dimension und die grosszügige Treppe unterscheiden ihn von den Vorbereichen der Privathäuser und zeigt seine öffentliche Bedeutung.

































