
Im Thurgau
Eine der typischen thurgauer Hochstämmer-Wiese vor dem Ensemble

historische Aufnahme der Südseite
Noch ohne Dachgauben, dafür mit der typischen Rampe bei der Tenndurchfahrt

Zustand 1985
Dem Haus wurden Dachgauben und ein Zwerchgiebel hinzugefügt – noch ohne Nutzen, aber für den Fall zukünftiger Ausbauten.

Zustand 2024
Die in den 1980er Jahren hinzugefügten Elemente werden weiterverwendet, die historische Rampe als Zugang zum Garten neu gebaut

Nebengebäude
Der Betrieb wird teilweise noch landwirtschaftlich genutzt. Für die Autos der neuen Bewohnenden und für den landwirtschaftlichen Betrieb wurde ein Nebengebäude erstellt.

Westfassade
Neuinterpretation der traditionellen Wetterseiten der Thurgau Stallscheunen

Südostseite
Saniertes Fachwerkhaus und umgebaute Scheune

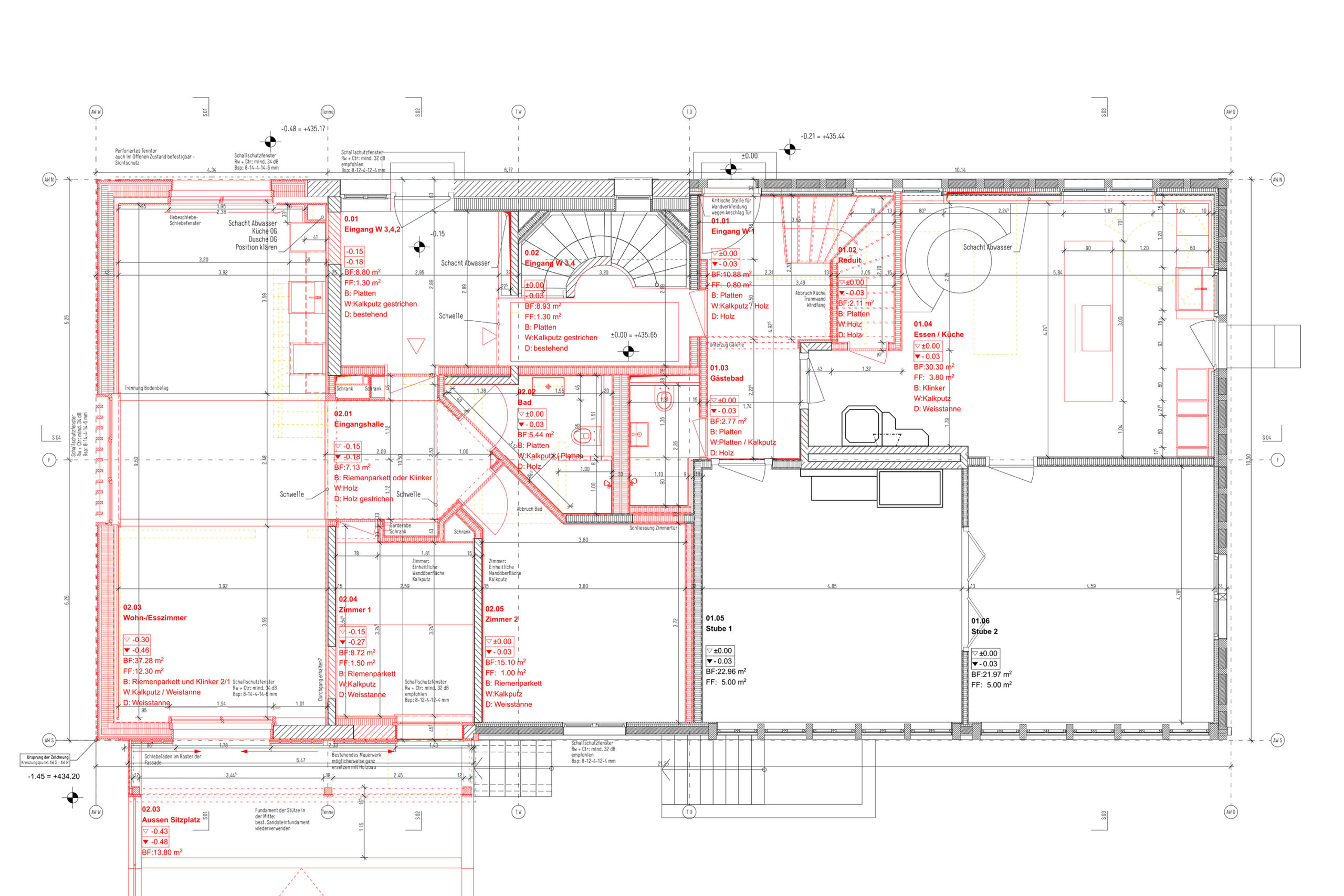
Grundriss EG
Es wurden nicht nur möglichst viele historische Bauteile, sondern auch grosse der Teil der Elemente aus den 1980er Jahren weiterverwendet.

Raumabfolge
In der Wohnung im Erdgeschoss

Kabinett 
Raumabfolge
Der historischen Höhenversätze von Durchfahrt und Stall bleibt erhalten.

Detail der Nebenstube
Der älteste, erhalten Raum des Hauses mit Bohlenständerwandund seltener spätgotischer Balken-Bohlen-Decke

historische Befensterung
Die Fassung der 1980er Jahre wurde saniert und leicht überarbeitet

internes Treppenhaus
Die ehemalige interne Treppe wird zur Haupterschliessung der Wohnungen, das Wohnhaus bekommt eine neue interne Treppe

Detail
Das neue, interne Treppenhaus im Detail

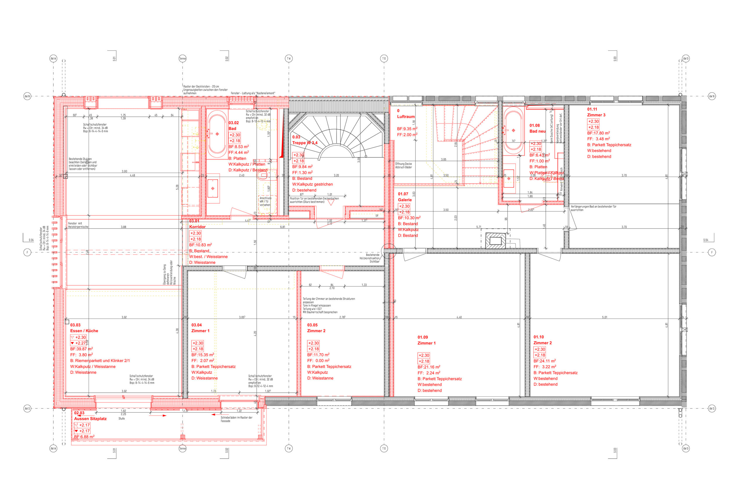
Grundrisse 1.OG
Es wurden nicht nur möglichst viele historische Bauteile, sondern auch grosse der Teil der Elemente aus den 1980er Jahren weiterverwendet.

Wohnung im 1.OG
Die in den 1980er Jahren erstellte «Fachwerkzimmerwand» – ein historisch untypisches Element – wurde erhalten und integriert.

Detail des Küchenfensters
Küchenfenster der Wohnung im 1.OG

Hoffassade
Das neue Fenster und der Bestand


Im Wohnhaus
Neugefasste Teile der historischen Wohnräume im 1.Obergeschoss

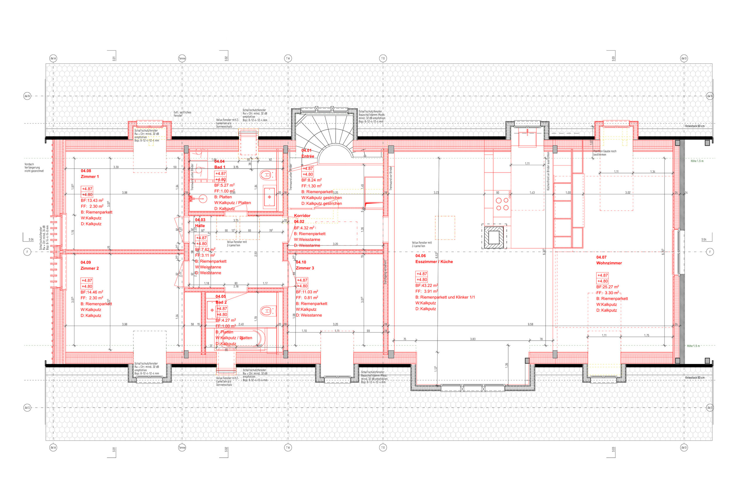
Grundriss Dachgeschoss
Die in den 1980er Jahren erstellten Dachgauben wurden weiter genutzt und mimetisch ergänzt.

Dachraum
Mit verstärkenden Stahlträgern konnte die Funktionsweise der historischen Konstruktion erhalten werden.

Küche
Die Gauben und Fenster der 1980er Jahre wurden erhalten und weiterverwendet.

Axonometrische Darstellung der Struktur
Das Haus verfügt über eine eigenwillige, doppelte Bodenkonstruktion des obersten Geschosses.

Spiegelkabinett
Im Erschliessungsraum der Dachwohnung

Spiegelungen
Im Erschliessungsraum der Dachwohnung

Zimmer
Schreinerarbeit anstelle eines Einbauschrankes

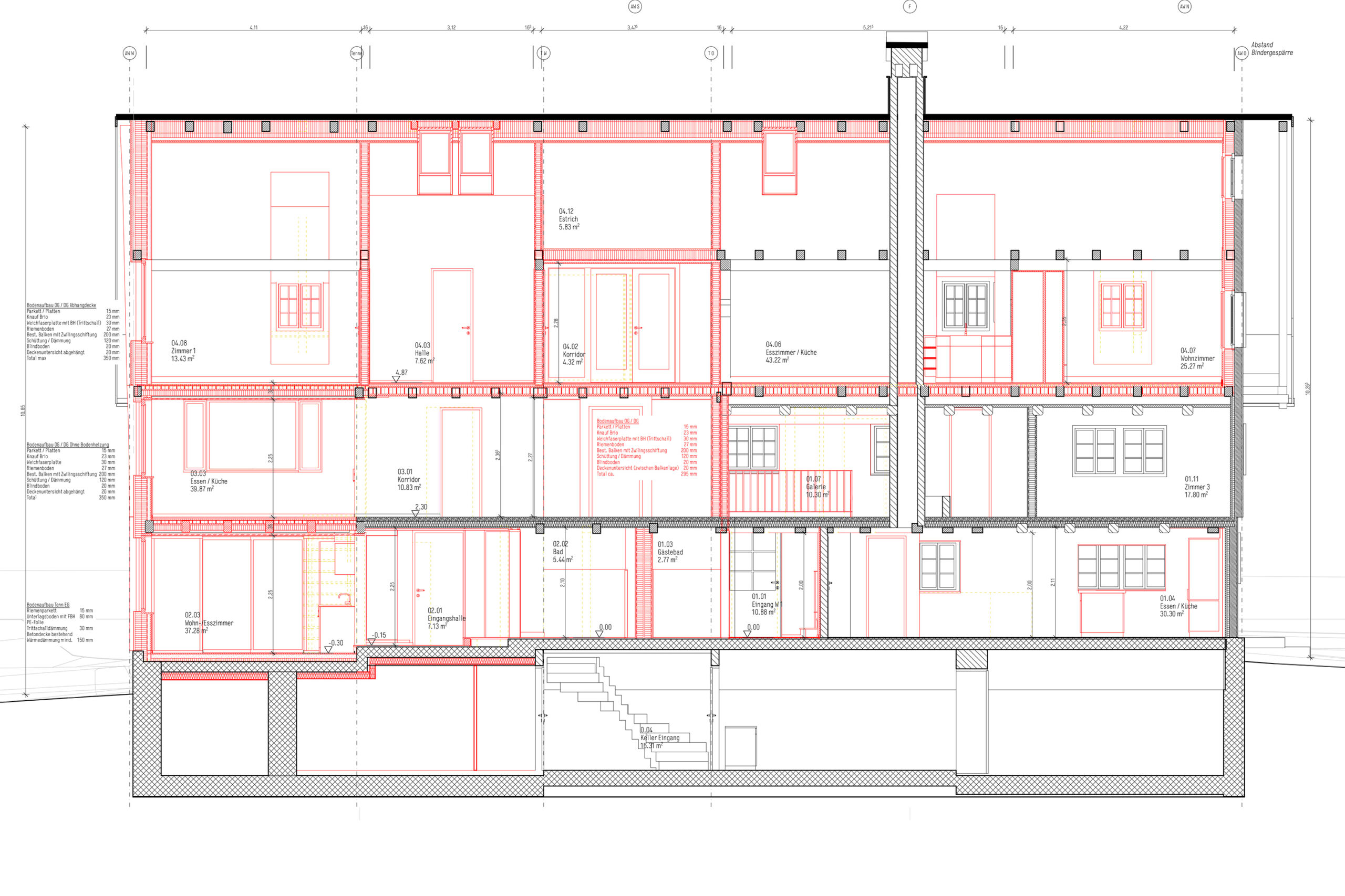
Längsschnitt
Es wurden nicht nur möglichst viele historische Bauteile, sondern auch grosse der Teil der Elemente aus den 1980er Jahren weiterverwendet.

Kaminzug
Detail der Küche in der Dachwohnung

Kabinett
Der Erschliessungsraum der Dachwohnung

Blick von der Aach
Im Ortsbild erhält das Haus einen hohen Stellenwert im Verband mit dem gegenüberliegenden Haus und der Engstelle der Strasse

Nebengebäude im Terrain
Carport und Sitzplatz der oberen Wohnng

Nebengebäude
Alte und neue Nutzung unter einem Dach

Hofseite
Die Hofseite wurde mit einer Gaube in der Art der bestehenden Gauben aus den 1980er Jahren ergänzt, ausserdem mit einem einzigen Fenster. Die unvermeidlichen Veluxfenster wurden mit Kupferlamellen abgedeckt und integriert.

Südseite



































