
Das neue Konglomerat
links der bestehende, neu gefasste Anlieferungsturm, rechts der Lageranbau, der ein bestehendes Becken als Fundament nutzt

1) Trafostation 2) EMV 3) Pavillon 4) Cosubstratannahme 5) Stapelmischbehälter 
Die erweiterte und sanierte Cosubstratannahmestelle
ganz links der Lagerneubau, mittig der neue und rechts der bestehende Anlieferungsturm

Anbau Lager
Das Lager wurde über einem bestehenden Becken errichtet und nutzt dieses als Fundament

Fassadenausschnitt
Südwestliche Gebäudeecke

Anbau Lager
Das Lager wurde über einem bestehenden Becken errichtet und nutzt dieses als Fundament

Südwestfassade 
Südostfassade 
Alt- und Neubau
im Vordergrund die umgebaute, bestehende Anlieferung, rechts das neue Lagergebäude

Anlieferungsturm
Der neu gefasste Anlieferungsturm stellt den Fluchtpunkt der Haupterschliessungsachse des Areals dar.

Fassadendetail
Der Schieber ist für das unter dem Neubau liegende, bestehende Becken

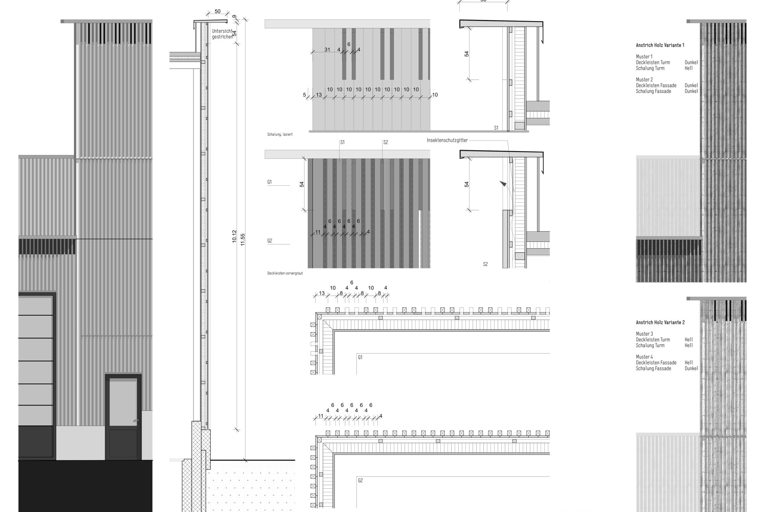
Details Fassade
Ein grosser Teil unserer Arbeit betrifft die Fassadenhülle der technischen Bauten

Fassadenmuster
Die beiden Türme sowie die niedrigen Gebäudeteile erhalten jeweils leicht unterschiedliche Farbabstufungen

Sockeldetail 1
Die Haltbarkeit der Holzlatten wird durch den abgeschrägten Sockel erhöht (Spritzwasser, Schnee)

Sockeldetail 2
Die Haltbarkeit der Holzlatten wird durch den abgeschrägten Sockel erhöht (Spritzwasser, Schnee)

Fassadendetail
Der Lagerneubau wurde über einem bestehendes Becken errichtet und nutzt dieses als Fundament















